Căn Hộ Mang Phong Cách Eclectic 148m² – Nét Độc Đáo Tại Phú Mỹ Hưng
Prestige tự hào đồng hành cùng gia chủ biến ý tưởng và phong cách sống riêng thành hiện thực qua từng chi tiết thiết kế nội thất tinh tế. Căn hộ mang phong cách Eclectic tại Phú Mỹ Hưng – mang tên Éclat – là minh chứng sống động cho sự sáng tạo không giới hạn, nơi mỗi không gian đều được chăm chút kỹ lưỡng để hiện thực hóa sở thích và mong muốn của gia chủ trong một không gian sống đẳng cấp, độc đáo.
Nằm tại The Horizon Phú Mỹ Hưng – một trong những căn hộ có giá đắt nhất nhì khu vực, nơi đây không chỉ khẳng định vị thế thượng lưu mà còn thể hiện tầm nhìn vượt trội, phù hợp với phong cách sống tinh tế của căn hộ Éclat.
Thông Tin Công Trình
- Phong cách: Eclectic
- Diện tích: 148m²
- Vị trí: The Horizon, Phú Mỹ Hưng
Căn hộ mang phong cách Eclectic này được thiết kế dành riêng cho những gia chủ yêu thích sự tự do, phóng khoáng và cá tính. Sự giao thoa tinh tế giữa yếu tố truyền thống và đương đại tạo nên một không gian sống đa chiều, đầy màu sắc nhưng vẫn giữ được sự cân bằng và hài hòa.
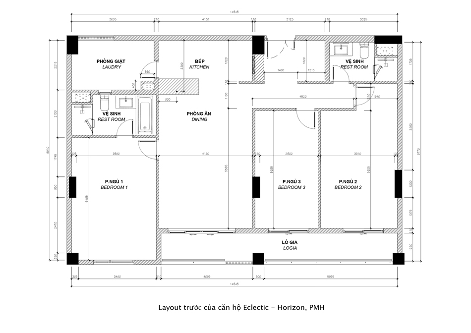
Hiện Trạng & Hạn Chế của Mặt Bằng Ban Đầu

Căn hộ Éclat tại The Horizon theo layout ban đầu gồm 1 phòng master và 2 phòng ngủ con, cùng khu vực sinh hoạt chung. Tuy nhiên, cách bố trí hiện tại bộc lộ nhiều điểm bất tiện:
- Hai phòng ngủ con chiếm diện tích lớn, khiến diện tích dành cho không gian chung bị thu hẹp, giảm sự thoáng đãng và tính kết nối giữa các khu vực.
- Lối giao thông dày đặc vách ngăn, tạo cảm giác bí và tách biệt. Từ phòng khách không thể quan sát trực tiếp cửa ra vào, dẫn đến việc gia chủ không biết ai vừa về nhà – đặc biệt là khi cần để mắt tới con trẻ.
- Bếp được thiết kế khép kín, ánh sáng từ logia khó lan tỏa vào, khiến không gian nấu ăn thiếu sáng và dễ gây cảm giác bức bí khi chế biến món ăn.
- Chưa có không gian làm việc riêng, trong khi gia chủ mong muốn có một góc làm việc yên tĩnh và thuận tiện, nhưng diện tích hiện tại không được tối ưu để bố trí thêm chức năng này.
- Sự tách rời giữa các không gian khiến trải nghiệm sống thiếu sự liền mạch và yếu tố “Luxury” mà gia chủ mong muốn khi bước vào nhà chưa được thể hiện rõ.
Bài toán đặt ra là làm sao vừa giữ được công năng đầy đủ, vừa mở rộng cảm giác không gian, cải thiện tầm nhìn – sự kết nối, mang lại ấn tượng sang trọng ngay từ lối vào.
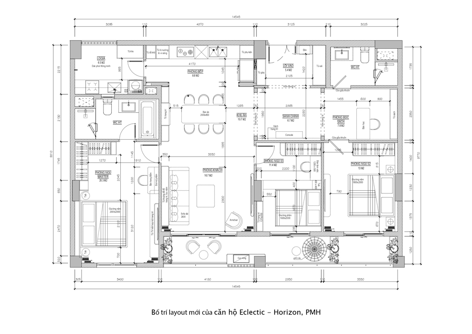
Từ Bài Toán Đến Giải Pháp
Những bất cập trong layout ban đầu – từ lối giao thông bí bách, bếp thiếu sáng, đến việc thiếu không gian làm việc – đã đặt ra yêu cầu cải tạo toàn diện. Mục tiêu là vừa duy trì đủ 2 phòng ngủ, vừa tối ưu diện tích sử dụng, đồng thời tạo ra cảm giác sang trọng ngay từ khi bước vào nhà.
Từ đó, phương án bố trí mới được triển khai: cắt giảm diện tích từ hai phòng ngủ con nhưng vẫn giữ trọn công năng với giường, tủ, bàn… mà không gian vẫn thông thoáng. Phần diện tích điều chỉnh được tái cấu trúc thành sảnh chính, trở thành “điểm nhấn Luxury” gợi nhớ những khoảng đệm tinh tế của biệt thự hay resort. Lối giao thông được mở rộng, cho phép tầm nhìn từ phòng khách tới cửa ra vào, tăng sự kết nối giữa các thành viên.
Một phần diện tích cắt ra từ phòng ngủ con bên trong được biến thành góc đọc sách kiêm làm việc, đáp ứng mong muốn của gia chủ. Khu bếp được thiết kế mở, loại bỏ vách ngăn khô cứng, giúp không gian sinh hoạt chung mạch lạc hơn và đón được ánh sáng tự nhiên tràn vào từ logia, kể cả ban ngày.

Sảnh Đón – Lời Chào Hòa Nhịp Của Nghệ Thuật và Đẳng Cấp
Ngay khi bước vào căn hộ mang phong cách Eclectic, không gian sảnh đón hiện lên như một bản giao hưởng của sự sang trọng. Chiếc đàn piano đen bóng đặt giữa trung tâm trở thành biểu tượng của niềm đam mê âm nhạc và nghệ thuật, hòa quyện cùng trần mái vòm cong mềm mại, điểm xuyết đèn chùm pha lê lấp lánh, tạo nên một không gian mở đầy cảm hứng, phản ánh phong cách sống thượng lưu.
Tường sảnh ốp đá cẩm thạch vân mịn, nổi bật với bức tranh trừu tượng rực rỡ làm điểm nhấn, cùng các tác phẩm nghệ thuật treo gọn gàng, mang đến chiều sâu và cá tính độc đáo, gợi lên gu thẩm mỹ tinh tế của gia chủ. Sàn nhà lát đá marble đen trắng với hoa văn đối xứng, phản chiếu ánh sáng lung linh, dẫn lối đến khu vực phòng khách – một hành trình kể chuyện về sự tinh tế mà Prestige đã khéo léo thể hiện trong thiết kế mang phong cách Eclectic này.
Tường vách đồng ánh kim, cùng nội thất gỗ óc chó bóng loáng, tạo nên sự hài hòa đối lập – nét đặc trưng của phong cách Eclectic, mà Prestige đã biến hóa tài tình thành không gian sống đầy sức hút.

Sảnh Đón Ấn Tượng Của Căn Hộ Éclat
Phòng Khách, Bàn Ăn & Bếp – Nơi Gia Đình Giao Thoa và Cảm Hứng Sáng Tạo
Phòng khách, khu vực bàn ăn và bếp trong căn hộ mang phong cách Eclectic được thiết kế mở, liền mạch, tạo nên không gian sinh hoạt ấm cúng và là câu chuyện sống động về gu thẩm mỹ cùng phong cách sống của gia chủ – một người yêu thích sự đa dạng, sáng tạo nhưng vẫn trân trọng giá trị gia đình. Qua bàn tay Prestige, không gian này trở thành một tác phẩm nghệ thuật gần gũi, phản ánh rõ nét cá tính của gia chủ.
Ánh Sáng và Kiến Trúc – Tạo Nên Cảm Xúc Không Gian
Hệ thống đèn chùm pha lê treo từ trần vòm caro tỏa ánh sáng vàng ấm áp, gợi lên sở thích của gia chủ về không gian lung linh, sang trọng nhưng không phô trương. Trần nhà với đường nét caro tinh tế và mái vòm mềm mại mang lại chiều sâu thị giác, thể hiện sự giao thoa giữa cổ điển và hiện đại – một nét đặc trưng của phong cách Eclectic mà Prestige đã hiện thực hóa.
Ánh sáng tự nhiên tràn ngập qua cửa kính lớn, phủ rèm voan trắng mỏng và rèm vải dày màu be, đem lại cảm giác thoáng đãng, kết nối với thiên nhiên – một tinh thần Eclectic được Prestige giữ trọn.

Phòng Khách Sang Trọng Của Căn Hộ Éclat
Nội Thất Tinh Tế – Giao Thoa Giữa Cổ Điển và Hiện Đại
Khu vực phòng khách nổi bật với sofa nhung màu be mang lại cảm giác ấm áp và thanh lịch, thể hiện gu thẩm mỹ tinh tế của gia chủ. Sự mềm mại của chất liệu nhung kết hợp cùng gối tựa lụa pastel tạo nên điểm nhấn nhẹ nhàng nhưng đầy thu hút. Trên tường, bức tranh kết cấu nổi với tông cam đất ánh kim hài hòa cùng viền đồng ánh kim của bàn trà, mang lại sự liên kết màu sắc tinh tế và hiện đại. Khung tranh màu đen bóng tạo điểm nhấn sắc nét, cân bằng với kệ trưng bày hai bên, hoàn thiện không gian phòng khách theo phong cách Eclectic, nơi cổ điển và hiện đại giao thoa một cách tự nhiên.

Sofa Và Bức Tranh Đầy Ấn Tượng Trong Căn Hộ Éclat
Khu Vực Bàn Ăn – Nơi Gắn Kết Giá Trị Gia Đình
Khu vực bàn ăn liền kề, thiết kế trang nhã với bàn cẩm thạch đen bóng và ghế bọc nhung be, là nơi gia chủ tổ chức những bữa tiệc ấm cúng. Khăn vải trắng mịn màng, bộ đĩa sứ trắng sang trọng trên tấm lót mây tre đan mang lại vẻ mộc mạc nhưng tinh tế. Đèn chùm pha lê treo cao làm nổi bật ly thủy tinh trong veo, nâng tầm sự thanh lịch cho không gian.

Khăn Vải Trắng Mịn Màng, Bộ Đĩa Sứ Trắng Sang Trọng Trên Tấm Lót Mây Tre Đan Mang Lại Vẻ Mộc Mạc Mà Tinh Tế
Phòng Bếp – Sự Hài Hòa Giữa Thẩm Mỹ và Công Năng
Phòng bếp liền kề, mang đậm chất Eclectic, với tủ bếp âm tường trắng sáng bóng, mặt đá marble và vách mosaic vảy cá bạc lấp lánh – do Prestige lựa chọn, gợi nhớ sở thích về biển cả của nữ gia chủ. Ánh sáng LED dịu nhẹ cùng tay nắm kim loại mạ vàng tạo sự cân bằng giữa công năng và thẩm mỹ, mang lại không gian ấm cúng, lý tưởng cho việc chuẩn bị bữa ăn.

Vách Mosaic Bạc Lấp Lánh Gợi Nhớ Sở Thích Về Biển Cả Của Nữ Gia Chủ
Không Gian Nghỉ Ngơi – Biểu Tượng Của Phong Cách Sống Riêng
Không gian nghỉ ngơi – biểu tượng của phong cách sống riêng từng phòng ngủ tại căn hộ Éclat được tạo dựng theo những ý tưởng thiết kế riêng biệt, giúp gia chủ tận hưởng không gian nghỉ ngơi phù hợp với cá tính và sở thích của mình.
Phòng Ngủ Master – Sự Tinh Tế của Bình Yên và Sáng Tạo
Dưới ánh sáng dịu nhẹ xuyên qua rèm cửa mỏng, phòng ngủ Master của căn hộ Éclat – do Prestige thiết kế – dành cho một gia chủ yêu thích sự sáng tạo, khám phá và nét đẹp thanh lịch. Tông màu xanh dương sâu lắng và cam ấm áp, gợi nhắc sắc biển cả hòa quyện với ánh hoàng hôn, phản ánh cá tính mãnh liệt mà cũng tinh tế của gia chủ.
Những cành hoa tươi trên nền vách trắng, được Prestige lựa chọn cẩn thận, mang đến hơi thở thiên nhiên giản dị, phản ánh sở thích khám phá thế giới tự nhiên của gia chủ.
Các chi tiết đầu giường, tab đầu giường, và tủ kệ được bo tròn mềm mại, mang lại vẻ uyển chuyển, cổ điển và gần gũi, lấy cảm hứng từ những đường cong tự nhiên của biển cả mà gia chủ yêu thích, dưới bàn tay thiết kế khéo léo của Prestige.
Đồng thời, hình dạng trang trí trên đầu giường, với những đường nét uốn lượn như sóng biển, gợi lên hình ảnh đại dương mạnh mẽ, tiếp thêm cảm hứng sáng tạo trong không gian yên tĩnh này, đúng với tinh thần Eclectic đầy giao thoa và cá tính mà Prestige đã khéo léo thể hiện.
Phòng Ngủ Nhỏ 1 – Không Gian Năng Động Dành Cho Đam Mê Nghệ Thuật
Phòng ngủ nhỏ 1 tại căn hộ Éclat, do Prestige thiết kế, phản ánh sở thích năng động và đam mê nghệ thuật của gia chủ – một người yêu thích các xu hướng sáng tạo và muốn không gian sống khơi dậy cảm hứng. Bức tranh trừu tượng đỏ trắng trên tường, được gia chủ chọn như một tác phẩm yêu thích, trở thành điểm nhấn nghệ thuật độc đáo, gợi nhớ đến những buổi tham quan triển lãm hiện đại mà họ yêu thích.
Góc làm việc liền mạch với kệ sách và tủ quần áo, tối ưu hóa không gian, là nơi gia chủ say mê thực hiện các dự án sáng tạo, từ thiết kế đồ họa đến viết lách, thể hiện phong cách Eclectic năng động, tràn đầy cá tính.
Đèn thả hình lá vàng, với ánh sáng dịu nhẹ, mang đến không khí êm đềm, lý tưởng cho những giờ phút suy tư và phát triển ý tưởng mới, phù hợp với gu thẩm mỹ độc đáo mà Prestige đã khéo léo thể hiện.
Phòng Ngủ Nhỏ 2 – Không Gian Tinh Tế Phù Hợp Sở Thích Sang Trọng
Phòng ngủ nhỏ 2 tại căn hộ Éclat, do Prestige thiết kế, thể hiện sở thích sang trọng và tinh tế của gia chủ – một người yêu thích sự tiện nghi kết hợp với nét cổ điển.
Vách đầu giường bọc nhung cao cấp, điểm xuyết viền đồng tinh xảo, phản ánh gu thẩm mỹ cao cấp, gợi nhớ đến những chuyến du lịch đến các đô thị châu Âu mà gia chủ yêu thích.
Đèn thả trong phòng ngủ mang phong cách Eclectic này nổi bật với thiết kế vòng tròn đan xen, kết hợp kim loại mạ vàng và thủy tinh trong suốt, tạo nên vẻ sang trọng nhưng thanh thoát. Vị trí cạnh giường, cùng ánh sáng ấm áp, cung cấp sự chiếu sáng dịu nhẹ và làm điểm nhấn nghệ thuật, hòa hợp hoàn hảo với tổng thể tinh tế và cá tính của không gian.
Dấu Ấn Prestige Trong Từng Thiết Kế
Căn hộ mang phong cách Eclectic tại Phú Mỹ Hưng là minh chứng sống động cho tài năng của Prestige trong việc biến ý tưởng của gia chủ thành hiện thực qua từng chi tiết thiết kế đầy sáng tạo. Từ sảnh đón tràn ngập vẻ sang trọng đến những không gian ấm cúng, tinh tế, nơi đây là chốn an cư và nguồn cảm hứng vô tận, phản ánh phong cách và cá tính độc đáo của gia đình. Với sự đồng hành trong thiết kế từ Prestige, mong rằng tổ ấm này sẽ trở thành nơi khởi nguồn cảm hứng, lưu giữ những khoảnh khắc đẹp và mang đến niềm vui trọn vẹn cho gia chủ.
LIÊN HỆ ĐỂ ĐƯỢC TƯ VẤN THIẾT KẾ, THI CÔNG
- Hotline: 0911.368.558
- Fanpage: https://www.facebook.com/prestige.vn
- Website: http://prestige.vn
- Youtube: Prestige Interiors Construction
- Tik-tok: https://www.tiktok.com/@prestige.vn
- Email: contact@prestige.vn
- Office: 17 Đường 73, Phường Tân Phong, Quận 7, TP.HCM