Hoàn Thiện Nội Thất Căn Hộ Modern Classic The Grand View 130m² – Phú Mỹ Hưng
Mang dấu ấn độc bản trong từng điểm chạm, việc hoàn thiện nội thất căn hộ Modern Classic tại The Grand View – Phú Mỹ Hưng là cách Prestige giúp gia chủ kiến tạo một không gian cá nhân hóa theo đúng gu thẩm mỹ và nhịp sống riêng.Tại đây, từng quyết định thiết kế đều hướng đến một mục tiêu duy nhất — để ánh sáng đi xa hơn, không khí lưu thông tự nhiên hơn, và mỗi bước di chuyển trong nhà đều cảm thấy nhẹ nhàng hơn.”
Thông Tin Công Trình
• Phong cách: Modern Classic
• Diện tích: 130 m²
• Vị trí: The Grand View.
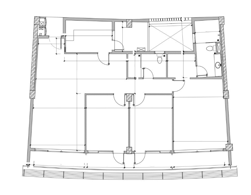
Hiện Trạng & Hạn Chế của Mặt Bằng Ban Đầu
Bố trí 3 phòng ngủ (2 phòng nhỏ + 1 master) khiến không gian bị chia vụn: Vì dồn diện tích cho ba phòng, khu sinh hoạt chung trở nên khá nhỏ và khó đạt cảm giác rộng thoáng đúng chuẩn sống. Trong khi nhu cầu thực tế chỉ cần 1 phòng nhỏ và 1 phòng master, việc giữ 3 phòng sẽ không phù hợp với nhu cầu thực tế của gia chủ
●”Bếp hiện trạng thiết kế theo kiểu phòng kín tách biệt nên khá bí bách và lại liên thông trực tiếp với khu giặt giũ, nên mùi dầu và hơi nóng dễ bị giữ lại, đồng thời hơi ẩm có thể lan ngược vào khu nấu ăn.
● Thiếu giải pháp hút mùi – cấp/xả gió hợp lý, mùi và ẩm sẽ lan ra không gian sinh hoạt chung, làm chất lượng không khí toàn căn hộ kém thoải mái. Bài toán đặt ra là chuyển đổi mặt bằng từ 3 phòng ngủ về 2 phòng ngủ để tối ưu diện tích, đồng thời tăng độ thông thoáng, nâng cao tính riêng tư và kiểm soát mùi–ẩm, giúp căn hộ đạt chuẩn sống tinh tế và bền vững theo thời gian.

Từ Bài Toán Đến Giải Pháp
Từ những hạn chế của mặt bằng cũ, Prestige không tiếp cận theo hướng chỉnh sửa cục bộ, mà chọn tái tổ chức lại công năng để giải quyết tận gốc trải nghiệm sống trong căn hộ 130m².
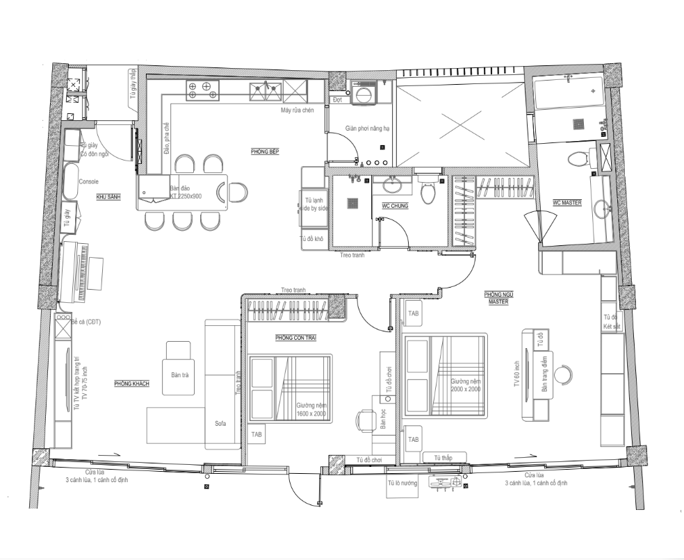
Trước hết, mặt bằng được chuyển đổi từ ba phòng ngủ về hai phòng ngủ, gồm một phòng master và một phòng nhỏ. Đây không chỉ là quyết định “bớt một phòng để lấy chỗ”, mà là lựa chọn có chủ đích nhằm tăng diện tích 2 phòng ngủ và trả lại diện tích cho khu sinh hoạt chung — nơi gia chủ sử dụng thường xuyên nhất mỗi ngày. Với nhu cầu thực tế của gia đình chỉ cần hai phòng ngủ, việc giữ nguyên ba phòng sẽ khiến không gian bị chia vụn, làm giảm cảm giác rộng thoáng và giá trị sử dụng của toàn căn hộ. Prestige vì vậy chọn phương án tái phân bổ diện tích thay vì cố giữ đủ số phòng theo mặt bằng cũ, để mỗi mét vuông đều phục vụ đúng nhịp sống thực tế của gia chủ.
Song song đó, khu bếp được thiết kế theo hướng mở và kết nối với phòng khách. Prestige chọn giải pháp này thay vì chỉ bổ sung hút mùi hay cải thiện thông gió đơn thuần, bởi bản chất vấn đề của bếp cũ không chỉ nằm ở mùi hay nhiệt, mà còn ở cảm giác bí bách do cấu trúc phòng kín và sự tách rời khỏi không gian chung. Khi bếp được mở ra đúng cách, ánh sáng và tầm nhìn có thể lan sâu hơn vào bên trong căn hộ, đồng thời không gian sinh hoạt chung cũng trở nên liền mạch và giàu tương tác hơn.
Chính nhờ cách giải bài toán từ gốc đó, không gian sau cải tạo đạt được sự cân bằng giữa độ mở, sự riêng tư và tính bền vững trong trải nghiệm sống — một giá trị khác biệt giữa thiết kế có tư duy và một phương án thi công đơn thuần.
Tìm hiểu thêm về quy trình thi công nội thất tại Prestige

Phòng Khách, Bàn Ăn & Bếp – Nơi Thẩm Mỹ và Trải Nghiệm Sống Hòa Quyện
Lối đi từ tiền sảnh vào phòng khách được luôn giữ gọn và thông thoáng, để ánh sáng từ cửa chính không bị ngắt quãng và cảm giác di chuyển luôn liền mạch. Sự “để trống” ở đây không phải vì thiếu điểm nhấn, mà vì kiến trúc sư hiểu rằng chỉ cần thêm một chi tiết không cần thiết, toàn bộ nhịp sáng và độ thoáng của không gian sẽ bị phá vỡ. Tầm nhìn được kéo dài xuyên suốt từ lối vào đến hệ kính lớn ở phòng khách , và đó chính là thứ tạo ra cảm giác rộng thực sự — không phải diện tích, mà là chiều sâu. Nhờ cách bố trí mở kết hợp nguồn ánh sáng tự nhiên từ hệ cửa lớn, toàn bộ không gian trở nên sáng sủa, thông thoáng và giàu sức sống. Dưới bàn tay thiết kế của đội ngũ kiến trúc sư Prestige, khu vực này không chỉ là trung tâm sinh hoạt của gia đình mà còn thể hiện rõ tinh thần sống tinh tế, hiện đại và đầy cảm hứng..
Không Gian Mở Đón Trọn Ánh Sáng – Khi Kiến Trúc và Ánh Sáng Hòa Làm Một
Điểm đáng giá của không gian này nằm ở cách ánh sáng được đặt làm trung tâm của toàn bộ khu sinh hoạt chung. Nhờ hệ cửa kính lớn và mặt bằng mở, ánh sáng tự nhiên có thể đi xuyên suốt từ phòng khách sang khu bếp,không chỉ giúp căn hộ trở nên rộng và thoáng hơn về cảm giác mà còn mang lại trạng thái sống dễ chịu cho người ở — tinh thần thư thái hơn, nhịp sinh hoạt nhẹ nhàng hơn và ít phụ thuộc vào ánh sáng nhân tạo vào ban ngày.
Điều tinh tế là ánh sáng trong không gian này không dừng lại ở cửa sổ. Khi chạm vào sàn bóng, mặt đá marble vân sáng hay hệ tủ bếp màu trắng kem, ánh sáng được “hắt lại” một cách tự nhiên và lan sâu hơn vào bên trong, khiến căn hộ luôn giữ được cảm giác thoáng đãng và nhẹ nhàng.Khi chiều xuống, hệ đèn được bật lên theo cùng một tinh thần đó — không quá sáng, không thay đổi đột ngột — để không gian vẫn giữ được sự ấm áp và mềm mại như ánh sáng ban ngày.Một thiết kế ánh sáng tốt không phải là khi căn phòng đủ sáng, mà là khi người ở không còn để ý đến ánh sáng nữa — chỉ đơn giản là sự hiện diện của ánh sáng đã hòa làm một với nhịp sống, khiến ta thấy bình yên một cách tự nhiên nhất
Nội Thất Tinh Tế – Sự Cân Bằng Giữa Sang Trọng và Tinh Tế
Nội thất phong cách Modern Classic trong không gian phòng khách được thể hiện qua những chi tiết tiết chế vừa đủ nhưng vẫn tạo điểm nhấn rõ ràng. Bộ sofa lớn với tông màu trung tính kết hợp cùng thảm trải sàn giúp định hình khu vực tiếp khách, tạo nên một “điểm neo” thị giác cho toàn bộ không gian.. Phía đối diện, vách TV ốp đá vân tự nhiên kết hợp hệ kệ trang trí hai bên mang lại cảm giác sang trọng và cân đối.
Trần giật cấp hình tròn cùng đèn chùm trung tâm đóng vai trò như một điểm nhấn kiến trúc, giúp “gom” không gian phòng khách lại một cách tinh tế, tạo nên sự ấm cúng dù diện tích khu sinh hoạt chung khá rộng. Hệ ánh sáng nhiều lớp – từ đèn hắt trần, đèn trang trí đến đèn kệ tủ trang trí – góp phần làm nổi bật các chi tiết vật liệu và tăng chiều sâu cho không gian, hoàn thiện một tổng thể nội thất vừa trang nhã vừa giàu cảm xúc

Bếp & Bàn Ăn – Sự Kết Nối Tự Nhiên Trong Không Gian Sống
Khu bếp và bàn ăn được tổ chức liền mạch trong cùng một khối không gian mở — nơi việc nấu nướng, dùng bữa và trò chuyện diễn ra tự nhiên mà không cần phân ranh giới. Đảo bếp đặt ở trung tâm vừa mở rộng bề mặt chế biến, vừa là điểm dừng chân cho những bữa sáng nhanh hay câu chuyện cuối ngày.
Hệ tủ màu sáng kết hợp mặt đá vân Marble tự nhiên mang tinh thần Modern Classic — sang trọng nhưng không phô trương. Đèn thả chiếu xuống bàn ăn không chỉ để nhìn rõ hơn mà vùng sáng tập trung đó tự nhiên kéo ánh mắt mọi người hướng vào nhau, biến bữa ăn thành những khoảnh khắc các thành viên thực sự gắn kết. Đèn hắt trần phủ đều phần còn lại, xóa bóng tối ở các góc và giữ cho không gian luôn cảm thấy rộng hơn thực tế. Ranh giới giữa bếp và bàn ăn không cần vách ngăn vì ánh sáng đã giúp làm điều đó
Không Gian Nghỉ Ngơi – Khoảng Lặng Riêng Tư Của Căn Hộ
Sau không gian sinh hoạt chung rộng mở, căn hộ chuyển sang nhịp điệu yên tĩnh hơn, nơi sự riêng tư và cảm giác thư thái được nâng niu. Khoảng lặng này giúp gia chủ chậm lại sau nhịp sinh hoạt chung của gia đình, tái tạo năng lượng sau một ngày dài và tận hưởng những phút giây nghỉ ngơi trọn vẹn.
Phòng Ngủ Master – Bố Cục Tách Lớp Cho Sự Riêng Tư Tinh Tế
Giữa phòng ngủ master, Prestige đặt một khối kiến trúc độc lập —Tại sao không phải những vách ngăn và những bức tường chia thành những căn phòng có mỗi công năng khác nhau trong khi diện tích căn phòng đã được mở rộng hơn so với ban đầu.Đây là một lựa chọn có chủ đích, bởi nếu xuất hiện thêm vách ngăn, luồng sáng từ hệ cửa lớn sẽ không còn lan tỏa như một thể thống nhất, mà bị chia cắt thành nhiều lớp rời rạc .Trong khi đó, chính cảm giác ánh sáng trải đều và liền mạch là một ưu điểm cực kì đáng giá của căn phòng. Khối độc lập giữ nguyên dòng chảy ánh sáng xuyên suốt,đồng thời vẫn tạo ra ranh giới đủ để hai người có không gian riêng của mình.Khối này được thiết kế hai mặt có chủ đích: nhìn từ phía giường là vách TV ốp đá marble trầm tĩnh,nơi buổi tối được phép chậm lại và buông thả hoàn toàn — quay sang mặt còn lại là bàn trang điểm và hệ tủ kính, góc riêng tư của người vợ để một ngày mới bắt đầu nhẹ nhàng mà không ảnh hưởng đến nửa kia của mình.
Sự riêng tư tiếp tục được dệt vào từng lớp không gian phía sau. Góc sửa soạn của người vợ được che chắn tự nhiên khỏi tầm nhìn từ cửa vào, trong khi lối đi vào phòng thay đồ của người chồng nằm khuất phía trái cuối phòng — kín đáo đến mức ngay cả khi có khách mở cửa, ranh giới riêng tư vẫn được giữ nguyên vẹn.Cả hai đều có thế giới của riêng mình, ngay trong cùng một căn phòng.
Ánh sáng được xử lý theo cùng một triết lý không chiếu trực diện mà lan nhẹ qua các bề mặt. Lớp sáng gián tiếp từ khe hắt trần, hắt vách và đèn âm tủ kính tỏa ra đủ dịu để não bắt đầu thư giãn trước khi đầu chạm gối. Đây không chỉ là lựa chọn thẩm mỹ — đây là cách Prestige thiết kế ngược từ giấc ngủ, thay vì thiết kế xuôi từ bóng đèn

Phòng Tắm Master: Hành Trình Thư Giãn Qua Những Khoảng Lặng Tinh Tế
Không gian được tổ chức trên một trục thẳng mạch lạc, dẫn dắt gia chủ từ khu vực sửa soạn lavabo đến điểm kết là bồn tắm nằm đầy thư thái. Sự giao thoa giữa những đường nét Classic đối xứng và chất liệu Modern đá khổ lớn tạo nên một tổng thể điềm tĩnh, nơi trọng tâm là hệ lavabo dài được thiết kế treo hẫng giúp giải phóng diện tích sàn và tạo cảm giác thanh thoát. Việc sử dụng vách kính trong suốt thay cho các vách ngăn đặc giúp duy trì chiều sâu thị giác xuyên suốt, biến phòng tắm thành một không gian mở khoáng đạt, nơi mỗi chi tiết đều hiện diện đúng vai trò trong một bố cục sạch tuyệt đối.
Lớp ánh sáng ẩn mình với tông màu ấm được tính toán để làm mềm bề mặt đá xám, kiến tạo bầu không khí tĩnh lặng và có chiều sâu. Điểm chạm cuối cùng là mảng mosaic hoa tinh tế phía sau bồn tắm, một dấu ấn giàu cảm xúc giúp giữ lại ánh nhìn và đưa gia chủ vào trạng thái nghỉ ngơi sâu, biến những nghi thức thường nhật thành một trải nghiệm riêng tư đầy thư thái

Phòng Ngủ Nhỏ – Ấm Áp, Gọn Gàng và Lớn Lên Cùng Tuổi Thơ
Phía sau tông kem nhạt và những đường phào chỉ dọc chạy từ sàn lên trần là một bố cục được tính toán kỹ lưỡng — không gian này không chỉ được chăm chút về thẩm mỹ, mà còn được thiết kế để đứa trẻ cảm thấy thoải mái và tự nhiên khi sống trong đó
Toàn bộ nội thất từ kệ treo, bàn học đến tủ lưu trữ đều được bo tròn góc cạnh — không có đường thẳng sắc nét nào trong tầm mắt của trẻ. Không phải chi tiết thẩm mỹ đơn thuần: góc cạnh bo tròn giảm cảm giác cứng nhắc trong không gian, khiến bàn học trông ít “áp lực” hơn một bàn học thông thường. Trần phòng được trạng bị 3 lớp ánh sáng để đồng hành theo từng thời điểm trong ngày — đèn âm trần ấm dành cho giờ học và chơi và khi đèn hắt trần hiện lên, não trẻ cũng bắt đầu chậm lại để thư giãn vào cuối ngày,cuối cùng khi đèn hắt trần tắt hẳn, “trần sao” hiện ra như một lớp sáng dịu, giúp không gian vẫn êm ái và dẫn trẻ vào giấc ngủ một cách tự nhiên nhất
Khung nền màu xám trung tính được thiết kế có chủ đích: khi trẻ lớn lên và gu thẩm mỹ thay đổi, chỉ cần thay vài món trang trí nhỏ — phòng vẫn giữ nét sang trọng và hợp thời mà không cần cải tạo lại. Đó là tư duy bền vững mà Prestige đặt vào từng quyết định thiết kế — không chỉ giải quyết hôm nay, mà tính cho 10 năm tới.

Modern Classic – Một Không Gian Sống Được Chắt Lọc
Tại The Grand View, sự sang trọng không nằm ở sự phô diễn, mà hiện hữu trong dòng chảy liền mạch của ánh sáng và tỷ lệ Modern Classic tiết chế. Một không gian được khơi gợi từ những vật liệu trung tính chắt lọc, nơi mỗi điểm chạm đều dẫn dắt tâm hồn về sự tĩnh tại:khởi đầu bằng sự nhẹ nhõm, gắn kết trong từng nhịp sống và khép lại bằng cảm giác an yên
Mời bạn xem album hoàn thiện công trình cải tạo The Grand View để cảm nhận trọn vẹn không gian thực tế.
“Xem thêm các công trình hoàn thiện thực tế” → prestige.vn/cong-trinh-thuc-te/







































