Floréa Villa: Đóa Hoa Sang Trọng Giữa Lòng Thiên Nhiên Nhiệt Đới
Giữa miền đất Tây Ninh chan hòa ánh nắng và khoáng đạt, dự án Floréa Villa hiện lên như một lời khẳng định về sự giao hòa giữa kiến trúc và cảnh quan. Công trình này không chỉ đơn thuần làm mới diện mạo không gian sống và kiến trúc mặt đứng, mà còn là sự kiến tạo một tổ ấm mang tinh thần Neo Classic thanh thoát, khéo léo đồng điệu cùng làn gió nhiệt đới đặc trưng của vùng đất này.
THÔNG TIN DỰ ÁN
- Dự án: Thiết kế & thi công nhà phố Tây Ninh
- Phong cách thiết kế: Neo Classic x Tropical
- Diện tích: 135m²/sàn
- Kết cấu: Trệt, 2 lầu, sân thượng & hầm
Thiết Kế Mặt Tiền Biệt Thự Neo Classic: Tái Sinh Diện Mạo Công Trình
Mặt đứng của biệt thự được thiết kế lại theo ngôn ngữ kiến trúc Neo Classic. Từ hiện trạng ban đầu, công trình được định hình với các chi tiết như mái vòm cong, lan can sắt rèn và sắc trắng ngà. Mục tiêu là tạo ra một diện mạo thanh lịch và phù hợp với khí hậu nhiệt đới của Tây Ninh, góp phần định hình một thiết kế biệt thự Neo Classic tại Tây Ninh đặc trưng.
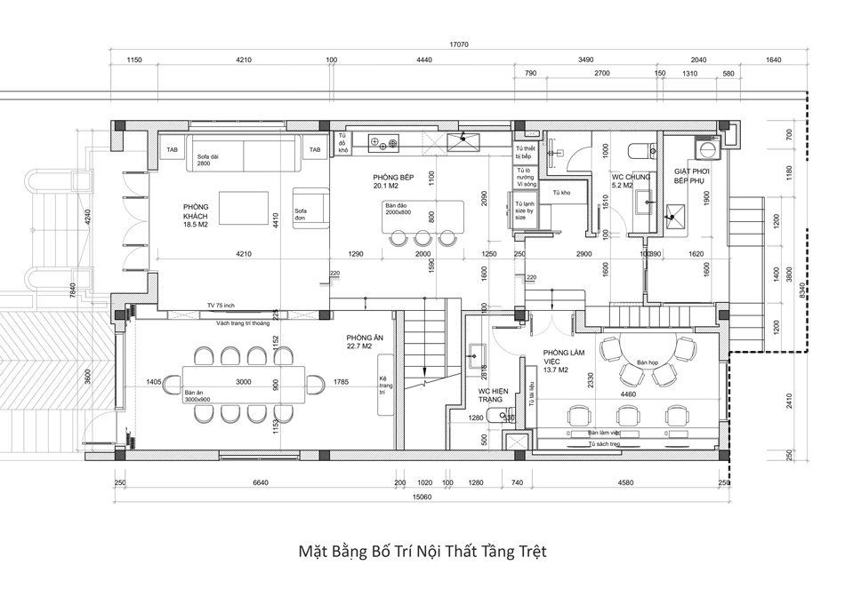
Layout tổng thể biệt thự ở Tây Ninh
Bước qua mặt đứng là một sơ đồ mặt bằng rõ ràng, đưa người dùng đi từ không gian công cộng đến riêng tư theo từng tầng. Tầng trệt dành cho tiếp khách và sinh hoạt chung, các tầng trên dần khép lại sự riêng tư. Trục giao thông chạy mạch lạc, hạn chế góc chết; các điểm đổi cảnh được xử lý bằng vòm chuyển tiếp và thay đổi cao độ tinh tế. Những không gian cần tách mùi và tiếng ồn như giặt phơi, kho hoặc khu phụ được đặt về cuối trục, tránh ảnh hưởng đến khối ở. Các “lõi ướt” xếp chồng theo phương đứng giúp hệ MEP gọn, dễ bảo trì, giảm rủi ro thấm ẩm về sau.
Layout tổng thể biệt thự ở Tây Ninh
Bước qua mặt đứng là một sơ đồ mặt bằng rõ ràng, đưa người dùng đi từ không gian công cộng đến riêng tư theo từng tầng. Tầng trệt dành cho tiếp khách và sinh hoạt chung, các tầng trên dần khép lại sự riêng tư. Trục giao thông chạy mạch lạc, hạn chế góc chết; các điểm đổi cảnh được xử lý bằng vòm chuyển tiếp và thay đổi cao độ tinh tế. Những không gian cần tách mùi và tiếng ồn như giặt phơi, kho hoặc khu phụ được đặt về cuối trục, tránh ảnh hưởng đến khối ở. Các “lõi ướt” xếp chồng theo phương đứng giúp hệ MEP gọn, dễ bảo trì, giảm rủi ro thấm ẩm về sau.
Tổ chức công năng theo tầng: dẫn mạch từ layout đến trải nghiệm sống
Sau khi định hình ngôn ngữ kiến trúc và layout tổng thể, câu chuyện bên trong được triển khai theo trục công cộng → bán riêng tư → riêng tư, để mỗi tầng đảm đương một vai trò rõ ràng mà vẫn kết nối thành một nhịp sống thống nhất.
Tầng trệt: Nơi tiếp khách – nấu nướng – quây quần trên cùng một nhịp
Không gian mở bắt đầu từ phòng khách, nơi tone nền dịu và tỷ lệ chuẩn mực tạo cảm giác đón nhận. Kề bên là khu bếp liên thông, trong đó đảo thao tác trở thành điểm tụ cho trò chuyện và nấu nướng; khoảng lùi, hướng gió và tổ chức chiếu sáng được cân chỉnh để hạn chế mùi lan sang khu tiếp khách. Phòng ăn đặt tại vị trí trung tâm của tầng, đủ trang trọng cho những buổi tụ họp nhưng vẫn thuận tay sử dụng hằng ngày. Ở một nhịp tách nhẹ, không gian làm việc chung cho gia đình được bố trí kín đáo vừa đủ để tập trung mà không rời khỏi mạch sinh hoạt. Cuối trục, khu giặt phơi thông thoáng tự nhiên, chuỗi thao tác giặt – sấy – xếp đi theo một đường thẳng ngắn gọn, giữ sàn khô ráo và an toàn.
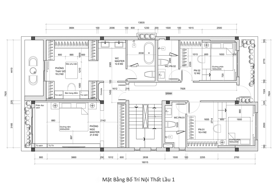
Lầu 1: riêng tư và cân bằng cảm xúc
Nhịp sống chậm lại ngay khi chạm đến tầng này. Phòng ngủ chính ưu tiên cảm giác nghỉ ngơi, tận dụng ánh sáng tự nhiên và tầm nhìn thoáng; cạnh đó là phòng thay đồ giúp việc chuẩn bị mỗi ngày trở thành một trải nghiệm gọn ghẽ và có trật tự. Khu tắm riêng được tổ chức với hai vùng khô – ướt rõ ràng, đóng mở thuận tay, vừa kín đáo vừa dễ vệ sinh. Các phòng ngủ còn lại giữ chung tinh thần Neo Classic tiết chế, điều chỉnh sắc độ và trang trí để phản ánh cá tính từng thành viên; mỗi phòng đều có vệ sinh riêng để nhịp sinh hoạt giờ cao điểm không chồng lấn.
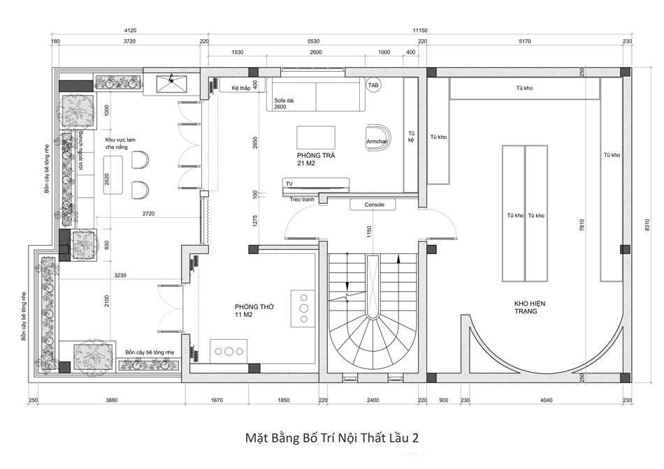
Lầu 2 ở Tây Ninh: tĩnh tại – gắn kết – lưu trữ
Không gian thờ đặt trang trọng ở vị trí đón được ánh sáng dịu và thông gió ngang, giữ bầu không khí khô ráo, sạch sẽ. Kế bên là phòng trà/sinh hoạt nhẹ, hoạt động như “phòng khách thứ hai” dành cho đọc sách, trò chuyện hoặc tiếp những vị khách thân thiết trong bầu không khí ấm áp. Ban công mở ra một lớp đệm xanh, vừa thư giãn vừa cải thiện vi khí hậu cho khối trên. Ở cùng tầng, khu lưu trữ được bố trí kín đáo nhưng thuận đường di chuyển, giúp tổng thể ngôi nhà luôn gọn gàng theo thời gian.
Sân thượng tại Tây Ninh: bếp phụ & khoảng trời cho những bữa tiệc BBQ
Tầng cao nhất là nơi cảm xúc được mở rộng. Một giàn che nhẹ cho phép nắng – gió đi qua vừa đủ, tạo bóng mát và giúp không khí thoáng suốt ngày. Khu bàn dài dành cho những bữa BBQ quây quần, còn bếp phụ đặt kề để chuẩn bị và phục vụ tại chỗ, tránh di chuyển nhiều tầng. Ở rìa là góc ngồi nhỏ hướng tầm nhìn thoáng, lý tưởng cho tách trà sáng hay ly vang buổi tối. Nhờ tổ chức mạch lạc và xanh hóa vừa phải, sân thượng trở thành “phòng khách ngoài trời” cho ngôi nhà ở Tây Ninh.

Những Cân Nhắc Trong Quá Trình Thiết Kế
Quá trình tư vấn ghi nhận một số lưu ý quan trọng. Biệt thự đơn lập này có diện tích ban công khá lớn, cần được xử lý phù hợp. Đặc biệt, tầng trệt có nhiều giật cấp, yêu cầu một phương án xử lý kỹ thuật tỉ mỉ để đảm bảo an toàn và tính thẩm mỹ. Với việc gia chủ chưa có mong muốn cụ thể, đội ngũ thiết kế sẽ chủ động đề xuất moodboard ban đầu để tham khảo ý kiến dần.
Đón Chờ Hành Trình Hoàn Thiện
Hãy tiếp tục đồng hành cùng Prestige để đón xem những cập nhật mới nhất về quá trình thi công và hoàn thiện công trình Floréa House trong thời gian sắp tới. Dự án thiết kế biệt thự Neo Classic tại Tây Ninh này không chỉ là một sự chuyển mình về kiến trúc mà còn là hành trình kiến tạo nên một không gian sống đích thực. Mỗi giai đoạn hoàn thiện đều là minh chứng cho một tổ ấm được xây dựng để lắng nghe và hòa điệu cùng con người, khí hậu và ký ức của vùng đất Tây Ninh.
LIÊN HỆ NGAY ĐỂ ĐƯỢC TƯ VẤN CỤ THỂ
- Hotline: 0911.368.558
- Fanpage: https://www.facebook.com/prestige.vn
- Youtube: Prestige Construction Interiors
- Tik-tok: https://www.tiktok.com/@prestige.vn
- Email: contact@prestige.vn
- Liên hệ: https://prestige.vn/lien-he-0911-368-558/
- Office: 17 Đường 73, Phường Tân Hưng, TP.HCM
Xem các không gian khác của Floréa Villa




































































































