Hồ Sơ Thiết Kế Thi Công Nhà Phố: Tránh Phát Sinh Ngay Từ Bản Vẽ
Trong xây dựng, hồ sơ thiết kế thi công nhà phố chính là “bộ não” dẫn dắt toàn bộ công trình. Nó không chỉ dừng ở vài bản vẽ bố trí mặt bằng hay phối cảnh, mà là hệ thống tài liệu thể hiện đầy đủ ý tưởng kiến trúc, giải pháp kết cấu, đường đi của điện – nước – điều hòa và cách các hạng mục liên kết với nhau ngoài thực tế. Khi bộ hồ sơ được chuẩn bị kỹ lưỡng, đồng bộ và có kiểm soát sai số, quá trình xây dựng sẽ rõ ràng hơn, hạn chế tối đa phát sinh chi phí, tránh sai kích thước và giảm rủi ro phải đập sửa. Bài viết này giúp bạn nhìn toàn cảnh cấu trúc hồ sơ, hiểu từng phần đóng vai trò gì, từ đó biết mình cần yêu cầu gì trước khi bắt đầu ký và xây..
Hồ Sơ Thiết Kế Thi Công Nhà Phố Là Gì & Vì Sao Nó Quyết Định 70% Chất Lượng Công Trình?
Trong ngành xây dựng, hồ sơ thiết kế thi công nhà phố còn gọi là bản vẽ kỹ thuật toàn diện, cung cấp đầy đủ thông tin cần thiết để triển khai công trình ngoài thực tế. Đây là tập hợp các bản vẽ kỹ thuật, sơ đồ mạch lạc của kiến trúc, kết cấu và hệ thống kỹ thuật, thể hiện rõ ràng các yếu tố từ mặt bằng, mặt đứng, mặt cắt cho đến các chi tiết nhỏ. Hơn nữa, hồ sơ này còn kèm theo các bản mô phỏng phối cảnh không gian để kiểm tra tính thẩm mỹ, các tính toán tải trọng, các tiêu chuẩn bố trí điện, nước và hệ thống điều hòa nhằm đảm bảo sự hài hòa của toàn bộ công trình.

Phân biệt 3 cấp độ hồ sơ: Phác thảo, kỹ thuật, thi công chi tiết
Để tránh nhầm lẫn giữa “bản vẽ xin phép” và “bản vẽ thi công thực tế”, chủ đầu tư cần hiểu rõ ba cấp độ hồ sơ dưới đây. Mini-bảng này giúp bạn nắm đúng bản chất chỉ trong vài giây.
| Tiêu chí | Concept / Phác thảo | Hồ sơ kỹ thuật (dùng để xin phép) | Hồ sơ thi công chi tiết |
|---|---|---|---|
| Mục đích | Thể hiện ý tưởng, mặt bằng sơ bộ, phong cách. | Hoàn thiện 60–70% thiết kế; dùng để xin phép xây dựng. | Thi công chính xác ngoài hiện trường – “vẽ sao làm vậy”. |
| Mức chi tiết | Chỉ có mặt bằng ý tưởng và phối cảnh thẩm mỹ. | Đã có mặt bằng – mặt đứng – mặt cắt, nhưng thiếu nhiều chi tiết kết cấu/MEP. | Đầy đủ kiến trúc – kết cấu – MEP + chi tiết liên kết, kích thước mm. |
| Thi công được không? | Không. | Có thể triển khai một phần, nhưng rủi ro sai số rất cao. | Làm được toàn bộ, kiểm soát sai số & phát sinh. |
| Rủi ro nếu dừng ở mức này | Phát sinh lớn vì… chưa đủ thông tin để làm. | Sai kích thước nội thất, thiếu line điện nước, đổi vật liệu, đập sửa. | Rủi ro thấp nhất; mọi hạng mục rõ ràng, hạn chế xung đột kỹ thuật. |
***Xin phép ≠ Thi công.
Hồ sơ kỹ thuật dùng để xin phép không đủ để thi công ngoài hiện trường. Dừng ở mức này rất dễ gặp lỗi sai kích thước, thiếu đường điện – nước, vướng dầm, thấm mái, hoặc phát sinh chi phí khi vào hoàn thiện.

Hồ Sơ Xin Phép Của Nhà Phố
Hồ Sơ 2D – Nền Tảng Kỹ Thuật
Phần 2D là tài liệu quan trọng nhất, quyết định độ chính xác khi triển khai ngoài công trường. Đây là nơi thể hiện toàn bộ kích thước, cao độ và cấu tạo kỹ thuật theo chuẩn xây dựng nhà phố, giúp nhà thầu đọc – làm – kiểm tra đúng từng mm, hạn chế tối đa sai số và phát sinh.

Hồ sơ 2D cô đọng xoay quanh bốn nhóm bản vẽ chính:
- Mặt bằng 2D: kích thước sử dụng, trục định vị, bố trí phòng và giao thông trong nhà.
- Mặt đứng 2D: hình khối mặt tiền, vị trí cửa – ban công, cao độ hoàn thiện.
- Mặt cắt 2D: tổng thể chiều cao các tầng, dầm – sàn – cầu thang, độ dốc khu vệ sinh.
- Chi tiết kỹ thuật: cấu tạo cầu thang, cửa, lan can, chống thấm, module tủ bếp – tủ áo…
Các bản vẽ này giúp kiểm soát những yếu tố quan trọng nhất của nhà phố:
- Kích thước thực tế có khớp nội thất hay không,
- Dầm – đường ống – thiết bị có xung đột nhau,
- Trần có đủ cao, vệ sinh có thoát nước chuẩn,
- Mặt tiền có đúng tỷ lệ và vật liệu như ý.
Dù 3D giúp hình dung thẩm mỹ, 2D mới là bộ tài liệu để triển khai thực tế. Khi 2D được thể hiện rõ ràng và đồng bộ giữa kiến trúc – kết cấu – MEP, công trình sẽ diễn ra một cách trôi chảy, hạn chế đập sửa và tránh phát sinh ngoài dự kiến.
Ví dụ thực tế: Rủi ro lớn khi hồ sơ không đồng bộ
Giả sử trong một nhà phố 4 tầng, nếu hồ sơ chưa rõ ràng hoặc thiếu sót các phần quan trọng như bản vẽ móng hoặc hệ thống điện – nước, hệ quả là:
- Nứt tường do thiết kế kết cấu không phù hợp hoặc thiếu tính toán tải trọng chính xác.
- Thấm mái do lớp chống thấm bị thiếu hoặc không đúng tiêu chuẩn kỹ thuật.
- Sai kích thước đồ nội thất, dẫn đến khó lắp đặt hoặc không vừa vặn.
- Quá tải điện năng hoặc phát sinh chi phí sửa sửa chữa hệ thống điện sau hoàn thiện.
Những rủi ro này đều bắt nguồn từ việc hồ sơ thiết kế thiếu chính xác hoặc không đầy đủ, chính nó sẽ quyết định đến 70% chất lượng và tuổi thọ của công trình. Vì vậy, chủ đầu tư cần đặc biệt chú trọng kiểm tra và xác nhận hồ sơ trước khi bắt đầu thi công để quyền lợi của mình được đảm bảo.
Hồ Sơ Kiến Trúc – Bộ Khung Định Hình Công Năng Và Thẩm Mỹ
Hồ sơ kiến trúc đóng vai trò là nền tảng để hình thành và tổ chức không gian sống trong nhà phố. Đây chính là “bộ khung” để các bộ môn khác xây dựng và phối hợp, đảm bảo công trình phù hợp với yêu cầu của gia chủ cũng như các tiêu chuẩn kỹ thuật phù hợp. Một hồ sơ kiến trúc đầy đủ, đúng tiêu chuẩn sẽ giúp cho các bước tiếp theo dễ dàng hơn, hạn chế được tối đa các phát sinh xảy ra trong quá trình thực hiện.
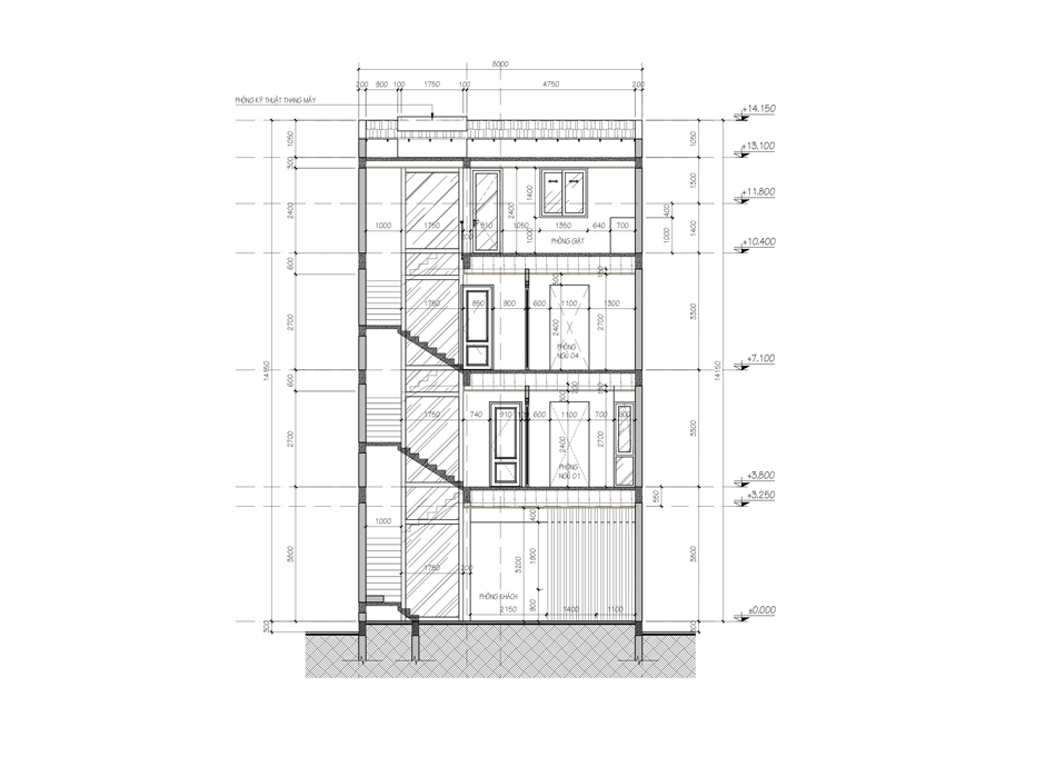
Mặt đứng & mặt cắt – linh hồn hình khối nhà phố
Mặt đứng và mặt cắt chính xác là cách thể hiện hình khối kiến trúc từ góc nhìn kỹ thuật và thẩm mỹ. Mặt cắt giúp chúng ta dễ dàng hình dung rõ hơn về chiều cao công trình, các đường đi của kỹ thuật trong nhà như đường ống, dây điện, hệ thống thông gió, thoát khí… hình thành nên một mô hình rõ ràng của toàn bộ thiết kế.
Trong thiết kế nhà phố, mặt đứng thể hiện vật liệu, các chi tiết trang trí, lam che nắng hoặc các hệ thống ban công, mái che. Việc chuẩn xác trong bản vẽ mặt đứng không chỉ phần thể hiện kiến trúc đẹp mắt mà còn giúp kiểm soát các yếu tố kỹ thuật như đảm bảo chiều cao công thái học phù hợp, kiểm soát độ dốc mái, phòng tránh rò rỉ nước, chống nứt do các yếu tố thời tiết.
Mặt bằng công năng – yếu tố quyết định trải nghiệm sống
Trong thiết kế nhà phố, mặt bằng công năng chính là phần thảo luận về cách phân chia các không gian sinh hoạt như phòng khách, phòng ngủ, phòng bếp, nhà vệ sinh, không gian kỹ thuật, cũng như các công năng phụ trợ.

Giúp Giám Sát Và Khách Hàng Dễ Hình Dung Trong Việc Bố Trí Công Năng
Ví dụ, với nhà phố 4-5m mặt tiền, việc bố trí hợp lý các phòng sao cho tối ưu diện tích, tận dụng ánh sáng tự nhiên và gió để cải thiện chất lượng sống là điều đáng quan tâm. Thường xuyên tỷ lệ “vàng” các không gian chính sẽ được cân nhắc để đảm bảo sự hài hòa giữa diện tích, ánh sáng, tổ chức không gian sử dụng hợp lý, đáp ứng đủ yêu cầu công thái học và thẩm mỹ.
Ngoài ra, khoảng lùi, thông tầng, giếng trời là những yếu tố tối ưu cho phép không khí lưu thông dễ dàng, nâng cao hiệu quả sử dụng ánh sáng tự nhiên, giảm tải hệ thống điều hòa, tiết kiệm năng lượng. Các lỗi thực tế phổ biến như hành lang quá hẹp, không có khe kỹ thuật hoặc thiếu ánh sáng tự nhiên đều xuất phát từ yếu tố mặt bằng công năng chưa được thiết kế tối ưu.
Phối cảnh 3D – không chỉ để đẹp, mà để kiểm tra sai sót
Phối cảnh không gian giúp chủ đầu tư dễ hình dung về không gian sống, cũng như giúp các kiến trúc sư kiểm tra các lỗi về tỷ lệ, màu sắc, vật liệu, ánh sáng. Thông qua mô hình 3D, các lỗi phổ biến như xây dựng không rõ quy cách, không phù hợp màu sắc, ánh sáng hay bố trí nội thất không đúng mới dễ phát hiện và chỉnh sửa.
Hầu hết các sai sót trong xây dựng nhà phố đều bắt nguồn từ dự án không được test kỹ qua phối cảnh 3D. Khi nhìn vào mô hình thực tế, các kỹ sư và chủ đầu tư dễ dàng phát hiện ra các điểm chưa phù hợp, điều chỉnh kịp thời mà không phải sửa chữa quá nhiều trong quá trình xây dựng, tiết kiệm thời gian, chi phí và công sức.
Hồ Sơ Kết Cấu – Bảo Đảm An Toàn Và Tuổi Thọ Công Trình (Bộ Hồ Sơ Quan Trọng Nhất)
Trong toàn bộ hồ sơ thiết kế, phần kết cấu đóng vai trò là xương sống, chịu mọi tải trọng của công trình, đảm bảo độ bền vĩnh cửu theo thời gian và khả năng chống chịu các tác động tự nhiên. Đây chính là giấy phép sinh tồn, giúp ngăn chặn các rủi ro như sập, nứt không dự kiến, dịch chuyển trong quá trình sử dụng.
Bản vẽ móng – nền tảng quyết định toàn bộ rủi ro
Móng chính là phần chịu lực chủ yếu trong toàn bộ công trình xây dựng. Tùy thuộc đất đai và tải trọng, ta có thể sử dụng móng cọc, móng băng hoặc móng đơn.
Việc khoan khảo sát địa chất phải thực hiện trước khi thiết kế móng, nhằm xác định đặc tính đất đai chính xác. Trong dự án nhà phố sát cạnh nhau, tính toán tải trọng đặc biệt càng quan trọng để tránh yếu tố nền móng bị sụt lún hoặc dịch chuyển.
Thiết kế móng chuẩn xác giúp hạn chế hiện tượng nứt tường, sàn hoặc kéo dài tuổi thọ toàn bộ công trình. Ngoài ra, móng còn ảnh hưởng lớn đến chi phí, độ dễ dàng trong xây dựng, và có vai trò quyết định tính chống rung, chống chấn động cho nhà phố cao tầng.
Bản vẽ dầm, cột, sàn – kiểm soát độ võng & chống nứt
Dầm, cột, sàn là các thành phần chịu lực chính trong lưới phân phối tải trọng. Các ký hiệu trong bản vẽ cần được chú ý rõ ràng, đặc biệt là ký hiệu thép, cấu tạo lap, móc, neo thép kết hợp nhằm đảm bảo khả năng chịu lực, chống lực động và tính đàn hồi.
Lỗi nguy hiểm thường gặp là cắt thép sai chiều dài, đặt thép lộn vị trí hoặc thiếu thép theo đúng tiêu chuẩn kỹ thuật. Khi thi công thiếu hồ sơ hoặc bản vẽ không rõ ràng, các vấn đề nứt, võng sàn, lún nền hoặc các vấn đề về an toàn sẽ dễ xảy ra, gây thiệt hại lớn về tuổi thọ của nhà phố.
Cầu thang – chi tiết nhỏ nhưng rủi ro lớn
“Nói theo cách dễ hiểu: bậc quá cao thì mỏi gối, bậc quá hẹp lại dễ vấp – đặc biệt nguy hiểm với trẻ nhỏ và người lớn tuổi.”

Hồ Sơ Triển Khai Cầu Thang
Cầu thang không chỉ là phương tiện kết nối các tầng mà còn ảnh hưởng trực tiếp đến an toàn và trải nghiệm sử dụng của gia đình. Các yếu tố như độ cao bậc, chiều rộng chiếu nghỉ, diện tích lan can đều phải đặt trong bản vẽ chính xác và tiêu chuẩn.
Đặt sai chiều cao hoặc chiều rộng của bậc thang dẫn đến nguy hiểm, đặc biệt với trẻ nhỏ và người già. Ngoài ra, các lỗi về thiết kế lan can hay cấu tạo cầu thang quá dốc đều có thể gây nguy hiểm và cần chỉnh sửa ngay trong hồ sơ trước khi thi công.
Hồ Sơ MEP (Điện – Nước – Điều hòa – Mạng)
Phần kỹ thuật mà đa số gia chủ ít hiểu nhất, nhưng lại là nguyên nhân của hầu hết sự cố phát sinh về sau.
Trong bộ hồ sơ hoàn thiện nhà phố, phần MEP thường là nội dung gia chủ ít nắm rõ, nhưng lại liên quan trực tiếp đến những rủi ro phổ biến nhất như chập điện, tắc thoát nước, rò rỉ, mùi hôi hay điều hòa hoạt động kém hiệu quả. Vì vậy, hệ thống cơ – điện – nước cần thể hiện rõ ràng tuyến ống, cao độ, thiết bị và nguyên lý vận hành để công trình hoạt động ổn định lâu dài.

Hồ Sơ Mep Cho Từng Không Gian Nhà Phố
Ba nhóm quan trọng trong hồ sơ MEP gồm:
• Hệ thống điện: bố trí ổ cắm, công tắc, chiếu sáng, điện mạnh – điện nhẹ, nguồn cho thiết bị lớn.
• Hệ thống cấp – thoát nước: độ dốc, vị trí ống, bẫy mùi, bể ngầm – bể mái, tránh rò rỉ và mùi quay ngược.
• Điều hòa & thông gió: vị trí dàn nóng – dàn lạnh, tuyến ống gas, thoát nước ngưng, thông gió tự nhiên và cơ khí.
Nếu một trong ba bộ phận này thể hiện sai hoặc thiếu trong hồ sơ, thi công sẽ phải đục sửa, phát sinh chi phí hoặc gây lỗi vận hành sau khi vào ở.
Tìm hiểu thêm cách thiết kế chiếu sáng chạm đến cảm xúc cho ngôi nhà của bạn
Hồ Sơ Nội Thất Cơ Bản – Đảm Bảo Sau Khi Xây Xong Nội Thất Không Bị… “Vướng Dầm – Thiếu Ổ Cắm – Lắp Tủ Không Vừa”
Bản vẽ nội thất, đặc biệt là sơ đồ để bố trí đồ gỗ chính là yếu tố then chốt để tránh các phát sinh không mong muốn sau thi công phần thô. Các kích thước module, cao độ ổ cắm, đèn, tủ bếp, tủ áo đều phải được tính toán chính xác để phù hợp với kiến trúc và kết cấu.
Bản vẽ đồ gỗ – thứ giúp tiết kiệm 10–20% chi phí nội thất
Thông qua bản vẽ nội thất cơ bản, các kiến trúc sư hoặc chủ nhà có thể xác định rõ các kích thước chuẩn đặt đồ nội thất, hệ thống tủ bếp, tủ quần áo, giường ngủ, kệ sách, tất cả phải phù hợp và tối ưu diện tích, đặc biệt trong diện tích hạn chế của nhà phố.
Tránh việc sửa chữa hoặc điều chỉnh trong quá trình lắp đặt, tiết kiệm thời gian và chi phí. Đặc biệt, module tủ bếp, tủ áo cần phù hợp với kích thước chuẩn quốc tế để lắp ráp dễ dàng và chính xác.
3D nội thất – tránh tình trạng “không giống hình”
Trên thực tế, thiết kế nội thất giúp chủ đầu tư hình dung rõ về không gian sống trong các giai đoạn nội thất đã hoàn thiện, qua đó phát hiện các lệch chuẩn, lỗi về vật liệu, màu sắc và điểm nhấn.

Tác dụng của phương pháp này là giúp tránh nhầm lẫn về màu sắc, vật liệu, bố cục, đồng thời đảm bảo các đồ nội thất phù hợp, không gây vướng chi tiết kết cấu, dầm hay ổ cắm điện. Do đó, mỗi dự án cần có 3D nội thất có vật liệu và màu sắc thật, cùng ánh sáng phù hợp để kiểm tra tính thẩm mỹ và kỹ thuật.
Hồ Sơ Dự Toán & Biện Pháp Thi Công – Cách Kiểm Soát Phát Sinh & Tiến Độ
Một trong những vấn đề gây thất thoát ngân sách lớn nhất trong xây dựng nhà phố chính là kiểm soát dự toán và tiến độ thi công chặt chẽ. Việc chuẩn bị dự toán khối lượng, đơn giá chính xác cùng các biện pháp phù hợp tạo nền tảng để chủ đầu tư theo dõi, kiểm soát khối lượng và ngân sách hiệu quả.
Dự toán thi công – đọc sao cho đúng?
Muốn kiểm soát chi phí, chủ đầu tư cần nắm rõ cách đọc bảng dự toán, gồm các phần khối lượng vật tư, nhân công, hao phí vật liệu và các hệ số liên quan. Phân biệt rõ dự toán thật, dự toán ảo dựa trên đơn giá, khối lượng, nội dung các hạng mục.

Tiến độ thi công – tại sao cần chi tiết tới từng tuần?
Lịch trình cần rõ ràng, cụ thể theo từng tuần, giúp kiểm soát tiến trình xây dựng phù hợp tiến độ dự kiến ban đầu, giảm thiểu các chồng chéo, lãng phí nhân lực và vật liệu. Thường thời gian chuẩn cho một nhà phố 4 tầng khoảng 2-5 tháng cho phần thô, tùy theo quy mô và phương án triển khai.
Thiết lập tiến độ rõ ràng còn giúp chủ đầu tư dễ dàng nhận biết và can thiệp khi có các phát sinh, điều chỉnh hợp lý, giúp dự án đúng tiến độ, hạn chế rủi ro. Các biện pháp phù hợp, thiết kế theo đúng hồ sơ và dự toán sẽ hạn chế các chi phí phát sinh ngoài ý muốn, bảo vệ quyền lợi đôi bên.
Dự toán ảo là gì – vì sao chủ nhà dễ bị “hớ”?
Trong thực tế, không ít đơn vị gửi bảng dự toán với đơn giá rất thấp, nhưng lại thiếu các hạng mục quan trọng như chống thấm, MEP hoặc hạng mục hoàn thiện. Khi vào thi công, những phần “bị bỏ quên” này lại được tính thêm, khiến chi phí tăng gấp nhiều lần so với ban đầu.
Một dấu hiệu khác của dự toán ảo là khối lượng không khớp bản vẽ, ví dụ: không có chống thấm sàn vệ sinh, thiếu ống thoát mái, không tính line điều hòa, hoặc ghi “phát sinh theo thực tế” ở các hạng mục then chốt.
Để tránh rủi ro này, chủ đầu tư nên yêu cầu nhà thầu đính kèm BOQ chi tiết (có mã hiệu) và bản vẽ tham chiếu cho từng hạng mục. Khi từng con số đều liên kết với bản vẽ, dự toán sẽ minh bạch và hạn chế tối đa phát sinh về sau.
Checklist 10 Điểm Rà Nhanh Hồ Sơ
(Dùng để kiểm tra hồ sơ trước khi ký hoặc gửi thầu – càng rõ ràng, càng ít phát sinh)
1. Móng + báo cáo địa chất rút gọn: Hồ sơ phải thể hiện rõ loại móng (cọc/băng/đơn), kích thước, vị trí thép và kèm khảo sát địa chất tối thiểu để tránh lún – nứt về sau.
2. Dầm – cột – sàn có chi tiết lap thép + neo thép: Đây là phần nhiều hồ sơ hay “bị rút gọn”. Nếu thiếu lap hoặc neo, thi công rất dễ sai thép — gây nứt sàn, võng dầm.
3. Mặt bằng kiến trúc thể hiện rõ kích thước sử dụng (lọt lòng – phủ bì): Đây là kích thước thực gia chủ sẽ nhận. Nếu thiếu, dễ xảy ra lệch module nội thất.
4. Điện: sơ đồ nguyên lý + mặt bằng ổ cắm/chiếu sáng + chi tiết tủ điện. Kiểm tra xem có thiếu line máy lạnh, máy giặt, máy nước nóng, tủ lạnh không.
5. Nước: độ dốc thoát nước – kết nối bẫy mùi – thoát mái. Thiếu độ dốc hoặc siphon chống mùi là nguyên nhân lớn nhất gây mùi hôi và thấm.
6. Điều hòa: tuyến ống gas + thoát nước ngưng + vị trí cục nóng. Nếu không thể hiện rõ, rất dễ phải đi lại ống → đục tường → phát sinh.
7. Thông gió & hút mùi: đường ống rõ ràng, không đi chồng chéo. Bếp – vệ sinh – giếng trời cần được bố trí hợp lý để tránh “hút ngược mùi”.
8. Nội thất cơ bản: cao độ ổ cắm theo module bếp – tủ – giường. 70% lỗi nội thất là do ổ cắm đặt sai cao độ hoặc vướng dầm.
9. Phối cảnh 3D khớp kỹ thuật (đèn – ổ cắm – vị trí nội thất): 3D phải khớp với bản vẽ kỹ thuật, không phải “vẽ cho đẹp rồi thi công tính sau”.
10. Tiến độ/biện pháp thực hiện có thống nhất với hồ sơ nghiệm thu?. Không ít dự án bị chậm vì hồ sơ – biện pháp không khớp nhau (ví dụ thi công phần thô trước khi chốt line điện nước).
Khám phá biện pháp thi công hoàn thiện nội thất đúng tiến độ
Những Sai Lầm Thường Gặp Khi Đọc Và Kiểm Tra Hồ Sơ
Trong quá trình triển khai xây dựng, nhiều chủ đầu tư hoặc kỹ sư thiếu kinh nghiệm thường mắc các lỗi dễ thấy như “thi công theo kinh nghiệm là đủ”, không kiểm tra sự đồng bộ giữa các bộ môn, hoặc bỏ qua các phần quan trọng.
Các sai lầm phổ biến gồm:
- Thiếu bản vẽ mái, chống thấm, thoát nước hoặc có nhưng không rõ kỹ thuật hoạt động.
- Chỉ dựa vào mô hình 3D mà không kiểm tra các bản vẽ kỹ thuật, dẫn đến chênh lệch và lỗi kỹ thuật.
- Không yêu cầu nhà thầu ký cam kết rõ về việc triển khai theo đúng hồ sơ, cũng như quy trình nghiệm thu ở từng giai đoạn, dẫn đến phát sinh các sai lệch lớn sau này.
Chủ đầu tư cần chú ý kiểm tra kỹ hồ sơ, yêu cầu đầy đủ các bản vẽ, mô tả chi tiết, đồng bộ và có giấy cam kết rõ ràng của đơn vị xây dựng để đảm bảo chất lượng.
Khi Nào Cần Chỉnh Sửa Hồ Sơ? Những Dấu Hiệu Báo Trước Rủi Ro
Trong quá trình xây dựng hoặc sau khi duyệt hồ sơ, có thể phát sinh các tình huống yêu cầu chỉnh sửa do lý do khách quan hoặc chủ quan. Đặc biệt, khi nhà thầu hoặc kỹ thuật viên phát hiện thiếu sót hoặc thay đổi vật liệu, nội thất, kết cấu…
Các dấu hiệu cần chỉnh sửa hồ sơ cụ thể gồm:
- Khi thay đổi vật liệu: Đổi loại mái, lớp chống thấm, vật liệu kết cấu mới.
- Khi thay đổi nội thất: Vị trí tủ bếp, điểm cắm điện, hệ thống điện, nước cần cập nhật để tránh vướng hoặc thiếu.
- Khi nhà bên cạnh làm nhà gây ảnh hưởng: Kết cấu, nền móng, hệ thống thoát nước cần điều chỉnh phù hợp, tránh xung đột hoặc ảnh hưởng đến chất lượng.
- Chỉnh sửa hồ sơ đúng quy trình, có sự thảo luận, kiểm tra lại kỹ lưỡng sẽ giúp tránh các rủi ro lớn như thấm dột, nứt tường, mất thẩm mỹ hoặc giảm tuổi thọ công trình.
5 Câu Hỏi Buộc Phải Hỏi Trước Khi Ký Hợp Đồng
Trước khi đặt bút ký, chủ đầu tư nên dành vài phút để làm rõ 5 câu hỏi dưới đây. Đây là những điểm nhỏ nhưng có thể quyết định toàn bộ mức phát sinh, tiến độ và độ chính xác.
1. Bộ hồ sơ hiện tại là hồ sơ kỹ thuật hay hồ sơ thi công chi tiết?
Hai mức hồ sơ này khác nhau hoàn toàn. Nếu mới dừng ở hồ sơ kỹ thuật, công trường rất dễ thiếu line, thiếu kích thước chi tiết, dẫn đến đục sửa và phát sinh.
2. Ai chịu trách nhiệm cập nhật hồ sơ khi đổi vật liệu hoặc thay đổi bố trí nội thất?
Việc thay vật liệu trong quá trình xây dựng là chuyện bình thường. Điều quan trọng là thay đổi đó phải được cập nhật vào bản vẽ, tránh việc triển khai theo “ký ức” của thợ.
3. Thời điểm chốt kích thước đồ gỗ là khi nào?
Nếu không chốt sớm, ổ cắm – dầm – ống MEP rất dễ vướng vào module tủ bếp, tủ áo, giường ngủ… gây sai lệch và đập sửa không đáng.
4. Tiến độ thi công có đi cùng với tiến độ duyệt hồ sơ không?
Nhiều dự án bị chậm vì phần thô đã xong nhưng hồ sơ điện – nước – nội thất chưa duyệt. Hai tiến độ này cần được khớp ngay từ đầu.
5. Có kèm BOQ chi tiết (mã hiệu – khối lượng – bản vẽ tham chiếu) không?
BOQ rõ ràng giúp bạn kiểm soát phát sinh. Nếu dự toán không có mã hiệu hoặc không khớp bản vẽ, rủi ro đội chi phí là rất cao.
Case thực tế: Khi khách hàng mang hồ sơ từ đơn vị khác – và Prestige phải “giải cứu” ngay từ bước đầu
Không ít khách hàng tìm đến Prestige trong tình huống họ đã thiết kế hồ sơ ở một đơn vị khác, sau đó mới chọn Prestige làm đơn vị xây dựng hoàn thiện. Khi tiếp nhận hồ sơ, đội ngũ kiến trúc sư và kỹ sư của Prestige nhận thấy rất nhiều bộ bản vẽ thiếu chi tiết, thiếu liên kết giữa kiến trúc – kết cấu – MEP, hoặc không đủ thông tin để triển khai thực tế ngoài công trường. Những lỗi phổ biến gồm:
Kích thước nội thất không khớp với không gian thật
- Line điện – nước – điều hòa chưa khớp dầm, cột hoặc kích thước hoàn thiện
- Mặt cắt thiếu cao độ – dễ gây sai lệch và phát sinh từ thời gian cho tới tiền bạc
- Thiếu chi tiết chống thấm, thoát mái, cấu tạo cầu thang
- Hồ sơ mỗi bộ môn được làm theo cách khác nhau, không đồng bộ
Trong những trường hợp này, nếu cố thi công theo hồ sơ cũ, rủi ro phát sinh, đục sửa và sai lệch kích thước gần như không tránh khỏi.
Vì vậy Prestige buộc phải tái kiểm tra toàn bộ, chỉnh sửa hoặc làm lại hồ sơ thiết kế, đảm bảo tất cả bộ môn được khớp với nhau trước khi bước vào thi công phần thô. Đây không chỉ là việc “sửa bản vẽ”, mà là cách để:
- Kiểm soát rủi ro từ giai đoạn đầu
- Đảm bảo triển khai đúng kỹ thuật
- Để Prestige theo dõi quy trình liền mạch xuyên suốt từ hồ sơ đến hoàn thiện.
Một khách hàng đã chia sẻ sau khi trải qua quy trình này:
“Hên là Anh/chị chọn bên em làm xây dựng hoàn thiện, nhờ vậy mới kiểm tra được bộ hồ sơ đó không ổn, chứ để thi công rồi mới phát hiện thiếu sót thì anh/chị lại phải sửa chữa tốn kém lắm. Tuy chưa dọn vào ở, nhưng mỗi lần ghé xem tiến độ là Anh/Chị thấy khá hài lòng — từ phần kiến trúc đến nội thất em à.”
Chính những tình huống như vậy cho thấy: một công trình xây dựng chất lượng luôn bắt đầu từ một bộ hồ sơ chuẩn. Khi hồ sơ rõ ràng và đồng bộ, mọi bộ môn đều có cơ sở để triển khai chính xác, hạn chế sai lệch và rủi ro trong suốt quá trình thực hiện.
Tổng kết
Hồ sơ thiết kế thi công nhà phố chính là bản đồ sống động định hướng toàn bộ quá trình xây dựng. Từ mặt bằng công năng, mặt đứng, mặt cắt đến các hệ thống kỹ thuật và cấu tạo liên kết, mọi thông tin cần được thể hiện rõ ràng, chính xác và đồng bộ để tạo nên một công trình bền vững, đúng với kỳ vọng của chủ nhà. Chuẩn bị hồ sơ đầy đủ – và biết cách kiểm tra, cập nhật khi cần – chính là cách hạn chế tối đa rủi ro và phát sinh trong quá trình xây dựng.
Tuy nhiên, trong thực tế, nhiều gia chủ vẫn tách rời từng giai đoạn: thiết kế một nơi, thi công phần thô một nơi, hoàn thiện một nơi, kèm theo các đội lắp đặt rời rạc như điện – nước, điều hòa, bếp, cửa, lan can… Khi mỗi bên làm một phần việc mà không có hệ thống kiểm soát chung, hồ sơ rất dễ bị “đứt gãy”, dẫn đến thiếu đồng bộ kỹ thuật, sai lệch bản vẽ và chi phí phát sinh khi giám sát – nghiệm thu.
Đó cũng là lý do ngày càng nhiều chủ nhà ưu tiên lựa chọn xây nhà trọn gói – mô hình giúp toàn bộ kiến trúc, kết cấu, MEP và hoàn thiện được triển khai trong một quy trình liền mạch. Khi mọi bộ môn được kiểm soát bởi một hệ thống duy nhất, công trình luôn bám đúng hồ sơ, đúng chất lượng và giảm thiểu tối đa rủi ro trong giai đoạn xây dựng thực tế.

Với kinh nghiệm thiết kế – xây dựng hoàn thiện đồng bộ hàng trăm công trình, Prestige Construction Interiors mang đến giải pháp xây nhà trọn gói cao cấp, giúp chủ nhà yên tâm tuyệt đối: hồ sơ chuẩn, thi công chuẩn và kết quả cuối cùng đúng như bản vẽ. Nếu bạn muốn tham khảo bộ hồ sơ mẫu hoặc cần đánh giá hồ sơ hiện tại trước khi quyết định xây, Prestige luôn sẵn sàng đồng hành như một đối tác tin cậy.
LIÊN HỆ NGAY ĐỂ BIẾT THÊM THÔNG TIN
- Hotline: 0911.368.558
- Fanpage: https://www.facebook.com/prestige.vn
- Youtube: Prestige Construction Interiors
- Tik-tok: https://www.tiktok.com/@prestige.vn
- Email: contact@prestige.vn
- Liên hệ: https://prestige.vn/lien-he-0911-368-558/
- Office: 17 Đường 73, Phường Tân Hưng, TP.HCM